Tasked with designing a kindergarten and library in Piazza dei Ciompi, a lively public square, located in the heart of the historic center of Florence, Italy. This project is an architectural vision that merges education, community, and history in a single welcoming space. Nestled around a historic piazza, this library and kindergarten become a focal point of local identity and civic pride, symbolizing unity across generations and purposes. The canopy roof, gracefully extending over both the building and the piazza, creates a unifying frame that visually & physically connects the library with its surroundings, while offering shelter and enhancing the use of the piazza in all weather conditions.

INTERIOR PERSPECTIVE | CAFE

INTERIOR PERSPECTIVE | LIBRARY

SECTION FACING WEST

EAST ELEVATION

EAST ELEVATION | MATERIAL STUDY

GROUND FLOOR

GROUND MEZZANINE FLOOR

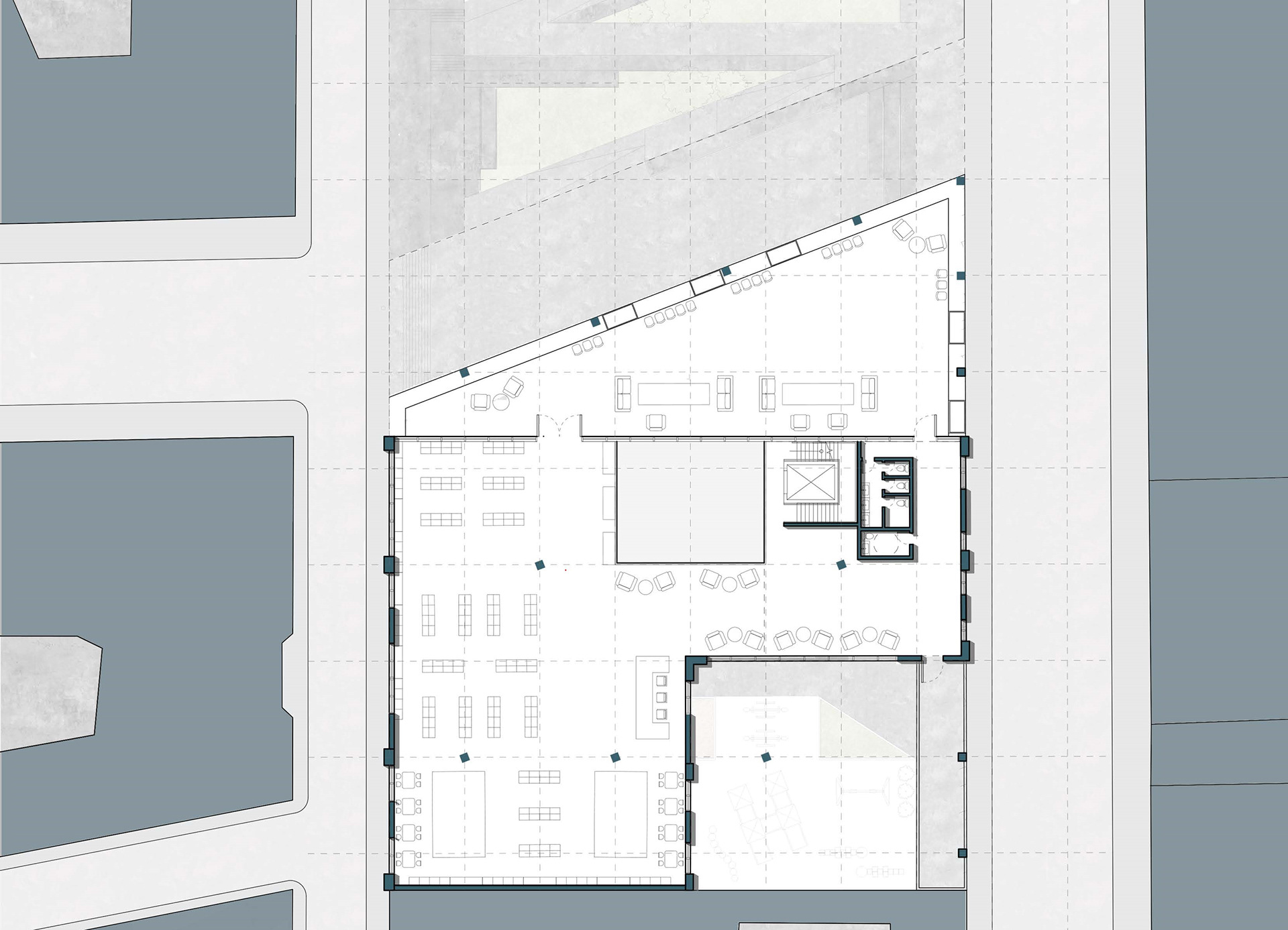
FIRST FLOOR

FIRST MEZZANINE FLOOR

SECTION FACING NORTH

EXTERIOR PERSPECTIVE | LOGGIA

EXTERIOR PERSPECTIVE | APPROACHING FROM WEST